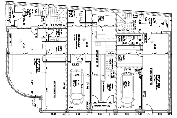
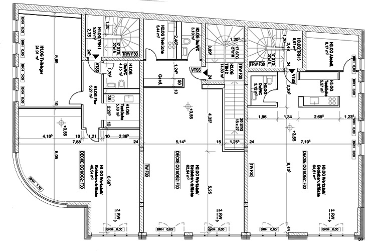
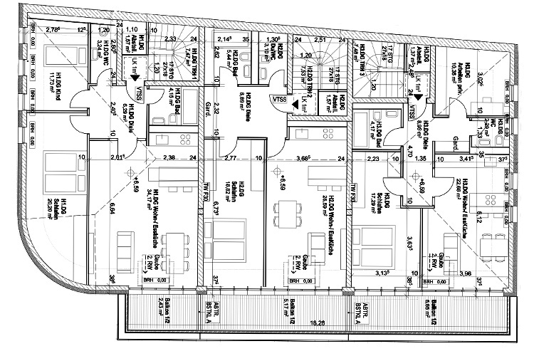
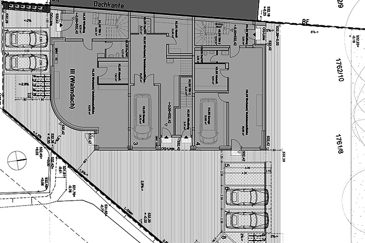
Meisterhäuser Germering
Neubau 3 Handwerkshäuser
Standort: Germering
Gesamtfläche: 1140,48 m²
Nutzfläche: ca. 303 m²
Am Handwerkerhof in Germering entstehen drei Meisterhäuser zum Verkauf. Raffiniert entworfen und individuell ausgeführt, werden drei in sich geschlossene Einheiten entstehen.
Werkstatt, Büro und/oder Vertriebs- und Lagerflächen können optimal genutzt werden und Raum für Kreativität geben. Zusätzlich sieht der Bauplan jeweils eine Betriebswohnung im Obergeschoss vor.
Bei Interesse am Erwerb wenden Sie sich bitte direkt an uns.






